1.檢測概述
上海某寺院內第一、第二進殿堂,天王殿和大雄寶殿二幢房屋擬進行大修。因某佛寺為上海市第二批優秀歷史建筑保護單位,為切實保護好優秀歷史建筑,根據《上海市歷史文化風貌區和優秀歷史建筑保護條例》、《房屋質量檢測規程》等有關條例規程的規定,上海某佛寺特委托房屋質量檢測站對大雄寶殿和天王殿進行房屋質量綜合檢測,以明確房屋建筑結構現狀,為房屋修繕提供依據。
由于房屋建造年代久遠,原始圖紙缺失,為滿足房屋修繕需要,本次檢測內容還包括天王殿、大雄寶殿兩幢房屋的圖紙測繪。
1.1 檢測鑒定的范圍
某佛寺分為前院和后院兩大部分,南側有一照壁。前院原有土地11.6畝,建筑面積8856平方米,基本上是以中軸線為對稱分布的木結構仿古江南廟宇建筑院落。中軸線上依次有大照壁、天王殿、大雄寶殿、般若丈室。本次檢測鑒定的范圍為某佛寺的第一進殿堂天王殿、第二進殿堂大雄寶殿。
1.2保護級別、重點及要求
某佛寺于20世紀末上海市人民政府公布為第二批優秀歷史建筑保護單位,保護級別為III級(上海市市級建筑保護單位)。天王殿、大雄寶殿的保護要求為二類,根據《上海市歷史文化風貌區和優秀歷史建筑保護條例》第二十五條規定,屬二類保護要求的優秀歷史建筑,建筑的立面和結構體系、平面布局和有特色的內部裝飾不得改變。為明確重點保護部位,對房屋木構架、臺基、軒廊等進行了詳細檢測,進一步明確和細化了重點保護部位及具體分布,確定天王殿、大雄寶殿重點保護部位如下:
天王殿:
1、東南西北各外立面,包括花窗;2、結構體系、基本平面布局;3、重檐歇山頂,包括屋面的吻獸、戧獸、脊獸、走獸、灰塑、花飾、寶頂;4、抬梁式木構架,包括柱、梁、枋、檁、椽、斗拱、柱礎(鼓磴、磉石);5、檐廊,包括飛椽、單步梁、檐枋、掛落等;6、底層落地長窗、二層搖桿窗;7、原臺基、石階、地面金磚;8、南門外抱鼓石;9、內部有特色的裝飾裝修。
大雄寶殿:
1、東南西北各外立面,包括花窗和磚雕;2、結構體系、基本平面布局;3、重檐歇山頂,包括屋面的吻獸、戧獸、脊獸、走獸、灰塑、花飾;4、抬梁式木構架,包括柱、梁、枋、檁、椽、斗拱、柱礎(鼓磴、磉石);5、檐廊,包括飛椽、單雙步梁、檐枋、掛落等;6、底層落地長窗,上下屋面間直欞窗;7、原臺基、石階、地面金磚;8、勾闌,包括望柱石獅等;9、東西卷棚頂連廊,東西月洞門;10、內部藻井、彩繪天花及有特色的裝飾裝修。
1.3主要工作內容
本次檢測鑒定主要工作內容包括:
1、建筑保護級別、重點及要求調查;2、歷史沿革調查;3、建筑、結構概況調查; 4、房屋完損現狀檢測;5、房屋變形測量;6、材料強度檢測;7、正常使用荷載下結構承載力分析;8、結構抗震性能分析;9、提出檢測鑒定結論;10、提出處理建議。
2.房屋概況
2.1天王殿建筑概況
天王殿為某佛寺的第一進殿堂。這是一座兩層樓的殿堂,座北朝南,略向東偏。正面開三個門,即為佛寺山門。天王殿主體兩層,其沿街面按山門式樣設置,東西長七間,面闊為25.85m,南北深四界,前后廊川,總進深為8.88m,兩側稍間各有樓梯一部。
底層地面皆鋪方磚,內部步柱、金柱均有石質柱頂石,外檐柱無柱頂石,石鼓礅落在磉石上;底層四面皆有門,沿街明次間設三板門,東間有磚雕圓窗各一,臨內院一面則在明次三間設長窗各6扇。二層東西長五間,南北深四界,其開間進深與底層相同,四面皆裝宮式半窗,地面為木地板;后經裝修將室內空間分隔成北側外廊和若干房間,房間內增加鋁合金窗和石膏板吊頂,作為辦公用房。
天王殿底層檐采用斗拱形式,向內出十字拱以承梁底,梁端向外伸長并預收小減薄作云頭;二層檐平身處無斗拱,僅柱頭外用斗口跳,以云頭挑梓桁。
天王殿外觀屬歇山式樓房,一層檐高5.1m,二層檐高4.75m;山花面為磚作,排水溝滴下刻出懸魚、搏風板和山花板;屋面采用仰覆蝴蝶瓦,檐口部分有花和滴水;屋脊采用龍吻正脊、亮花筒垂脊和戧脊。
屋面工藝采用檁上設椽、飛椽,椽上鋪木望板,望板上苫背,然后鋪設屋面瓦件。
2.2大雄寶殿建筑概況
大雄寶殿是寺院建筑的主體部分。大雄寶殿為單層建筑,其東西長五間,面闊為24m,南北深六間,進深為18.34m;殿庭梁深內四界,前后雙步,雙步之外,復做廊川,廊川形成重檐的下檐。
臺基高0.96m,臺基周圍有清式雕花欄桿圍繞;臺基地面為方磚鋪地,外沿有階條石。大雄寶殿底層檐采用十字式斗拱,平身科內外五出參,柱頭科內為三出參,外為五出參,二層檐內外皆為三出參;外部昂為鳳頭昂,內部皆為楓拱。
大雄寶殿外觀屬重檐歇山式單層建筑,脊高18.27m;屋面采用仰覆蝴蝶瓦,檐口部分有花和滴水;屋脊采用龍吻正脊、亮花筒垂脊和戧脊;側面排水溝滴下,以木板條釘出搏鳳板,山花板退后600mm;上檐與下檐之間采用一圈直欞窗用于采光,上下檐戧脊均有獸五個。
屋面工藝采用檁上設椽、飛椽,椽上鋪木望板,望板上苫背,然后鋪設屋面瓦件。
2.3結構概況
(1)結構設計理念及特點
天王殿、大雄寶殿均為木結構,承重結構均為抬梁式木構架,屋架為歇山式木構架。東、西山墻均采用實心粘土青磚砌筑(天王殿樓梯間處部分新砌墻體采用標準紅磚、混合砂漿砌筑);木結構主要采用抬梁式結構體系,在臺基上筑礎,立木柱,上施梁枋,梁上疊梁,逐級升高構成舉架,舉架向上支撐橫向桁(檁),桁上架椽,椽上鋪木望板,再苫背覆瓦。
天王殿、大雄寶殿均是以磚木為主材采用傳統工藝建造而成的仿古建筑,其傳力路徑清晰、明確,非常適用于佛教建筑。
(2)臺基
整個臺基經過修繕后,天王殿和大雄寶殿新鋪青色地磚,原磉石、鼓磴多數還保留,局部出新,局部更新。
(3)木構架
天王殿、大雄寶殿均為抬梁式木構架,主要構架見圖2-1、2-2。
(4)局部墻體
天王殿、大雄寶殿外圍墻體為自承重墻體,主要采用粘土青磚砌筑,局部后期修繕時采用過粘土紅磚混砌,粘土青磚砌筑主要采用石灰混合砂漿,局部后砌粘土紅磚采用水泥混合砂漿砌筑。砌筑青磚尺寸主要為240mm×115mm×50mm、210mm×110mm×35mm等。


3.圖紙測繪
因天王殿、大雄寶殿建造年代久遠,沒有原始圖紙,本次檢測采用了徠卡HDS三維激光掃描儀、水準儀、全站儀、測厚儀、激光測距儀、卷尺等儀器設備,對天王殿、大雄寶殿的建筑、結構進行了現場測繪,并形成測繪圖紙。
4.房屋完損現狀檢測
4.1天王殿完損現狀檢測
經檢測,天王殿室外屋面存在屋脊局部開裂,走獸開裂、缺失,泥塑陳舊、部分開裂,瓦片局部松動、移位、缺損,局部屋面受潮生苔、生長植物,滴水瓦缺損,封檐板開裂等現象;部分檐柱受潮腐朽、油漆脫落,部分木柱存在干裂現象;部分掛落老化變形,部分外墻門洞上方存在豎向裂縫。室內存在地坪地磚磨損,部分金柱干裂,部分內墻門洞處開裂等現象;木望板局部損壞、脫落,部分節點存在脫榫現象。設施設備主要存在水龍頭長期漏水、水管零亂等現象。
4.2大雄寶殿完損現狀檢測
經檢測,大雄寶殿室外屋面存在屋脊局部開裂,走獸、泥塑開裂,瓦片松動、移位、缺損,屋面受潮生苔、生長植物,滴水瓦缺損,封檐板受潮、油漆脫落等現象;外廊欄桿局部開裂,部分雕刻開裂損壞;部分掛落凹凸變形,部分外墻門洞上方存在豎向裂縫。室內存在地坪地磚磨損,大堂部分雕塑老化損壞,屋面板底檁、椽、梁、斗拱干裂等現象;部分節點輕度脫榫,天花板存在局部脫裂現象。設備設施主要存在避雷設施陳舊,消防設施設備缺乏等損壞現象。
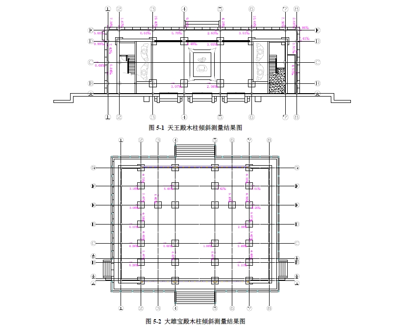
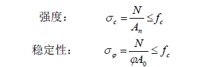
5.房屋變形測量
為掌握房屋目前傾斜情況,現場采用J2-2型經緯儀和JZC-D型工程質量檢測器,根據《建筑變形測量規范》(JGJ8-2007),對天王殿和大雄寶殿木柱的垂直度進行了測量。
5.1木柱傾斜測量

測量結果表明,大雄寶殿木柱傾斜方向無一致性,所有金柱傾斜率上均小于上海市工程建設規范《優秀歷史建筑修繕技術規程》(DGJ08-108-2004)規定的二級修繕的建筑總傾斜度限值10‰和層間傾斜度限值11‰。
5.2地面相對高差測量

大雄寶殿地面相對高差測量結果表明,大雄寶殿南北向為南低北高,相對傾斜率為4.15‰;東西向為東高西低,相對傾斜率為3.77‰;南側軒廊東高西低,相對傾斜率為3.05‰;北側軒廊西高東低,相對傾斜率為0.39‰;東西兩側軒廊均為南低北高,相對傾斜率分別為1.70‰,2.64‰。
5.3木梁撓度測量
采用高精度水準儀,測量木梁兩端位移值和中間點的位移值,根據《建筑變形測量規范》(JGJ 8-2007),計算木梁跨中撓度值。


根據測量結果,天王殿、大雄寶殿所抽檢的木梁撓度均在規范規定的范圍內。
5.4變形測量結果綜合分析結果
根據天王殿、大雄寶殿相對高差測量結果,天王殿臺基南低北高、中間高東西兩側低,大雄寶殿南低北高、東高西低;臺基有一定的不均勻沉降。
根據木柱傾斜測量結果,天王殿E/3處、E/6處檐柱向南傾斜較大,其傾斜率超過上海市工程建設規范《優秀歷史建筑修繕技術規程》(DGJ08-108-2004)規定的一級修繕建筑總傾斜度限值7‰和層間傾斜度限值8‰,且超過二級修繕的建筑總傾斜度限值10‰和層間傾斜度限值11‰。天王殿E/3處、E/6處檐柱本身有一定的側腳,同時臺基南低北高、中間高東西兩側低的不均勻沉降也是導致其傾斜率較大的原因。
6.材性檢測
6.1木材強度評估
經現場勘察,房屋主體結構木構件所采用的木材主要為杉木、粗皮松、細皮松,這三種木材新料的強度等級介于TC11A~TC13A之間。由于切取木材試樣對房屋屋面結構損傷較大,依據《既有建筑物結構檢測與評定標準》DB/TJ08-804-2005第4.9.5條及《民用建筑修繕工程查勘與設計規程》JGJ117-98第6.2.3條,選用舊木材作為承重構件或舊木結構構件,在驗算時應視其材質、材種、材性和使用條件、部位、年限等情況,綜合分析,強度設計值折減系數ψ可0.8,彈性模量折減系數ψ取0.8。
6.2砌筑磚強度檢測
采用ZC4型磚回彈儀,參照《既有建筑物結構檢測與評定標準》(DG/TJ08-804-2005)、《回彈儀評定燒結普通磚強度等級的方法》(JC/T796-1999)對天王殿和大雄寶殿砌筑磚強度進行了抽樣檢測。經檢測,天王殿原有青磚砌筑磚強度等級為MU5,天王殿局部新砌所采用的標準紅磚強度等級評定為MU10;大雄寶殿砌筑青磚強度等級為MU5。
6.3砌筑砂漿強度檢測
采用SJY800A型貫入式砂漿強度檢測儀,參照《貫入法檢測砌筑砂漿抗壓強度技術規程》(JGJ/T 136-2001)對有現場檢測條件的砌筑砂漿強度進行了抽樣檢測。檢測結果表明,天王殿原有墻體砌筑砂漿強度推定值介于0.4MPa~1.0MPa,天王殿局部新砌混合砂漿強度推定值為7.6MPa;大雄寶殿砌筑砂漿強度推定值介于0.7MPa ~1.1MPa。
7.正常使用荷載下結構承載力分析
7.1主要計算參數
根據現行國家標準《建筑結構荷載規范》(GB50009-2001 2006年版),樓(屋)面恒、活荷載取值如下:樓面恒荷載:1.5kN/m2;屋面恒荷載:1.5kN/m2;樓面活荷載:2.0kN/m2;不上人屋面活荷載:0.5kN/m2;材料強度:根據上述現場檢測結果取值;其余參數均根據現行標準、現場檢測結果取值。
7.2構件承載力分析
(1)木構件承載力驗算
按照《建筑結構荷載規范》(GB50009-2001 2006版)、《木結構設計規范》(GB50005-2003 2005年版)等現行國家和地方標準,對天王殿、大雄寶殿受力較大的木椽條、木梁、木柱進行承載力及變形驗算。驗算公式如下:

經驗算,在荷載效應基本組合作用下,天王殿、大雄寶殿木椽條、木梁、木柱的強度和穩定性均能滿足要求。
(2)自承重墻安全性驗算
按照《建筑結構荷載規范》(GB50009-2001 2006版)、《砌體結構設計規范》(GB50003-2001)等現行國家和地方標準,對天王殿、大雄寶殿自承重墻進行承載力計算。驗算公式如下:

經驗算,在荷載效應基本組合下,天王殿、大雄寶殿自承重墻的承載力滿足要求。
8.結構抗震性能分析
根據國家標準《建筑抗震鑒定標準》(GB50023-2009)、《古建筑木結構維護與加固技術規范》(GB50165-92)對天王殿、大雄寶殿的抗震性能進行分析鑒定。
8.1抗震設防基本要求
抗震設防類別:丙類;抗震設防烈度:7度;基本地震加速度:0.10g;地震分組:第一組;場地:IV類。
8.2地基基礎
根據《建筑抗震鑒定標準》(GB50023-2009)第4.2.2條規定,7度時地基基礎現狀無嚴重靜荷載缺陷的丙類建筑可不進行地基基礎的抗震鑒定。天王殿、大雄寶殿均符合上述條件,故可不進行地基基礎的抗震鑒定。
8.3上部結構
(1) 木結構房屋的外觀和內在質量


(3) 消防設施的現狀和地震時的防火問題
根據《現有建筑抗震鑒定與加固規程》(DGJ08-81-2000)第9.0.3條,木結構房屋抗震鑒定時,尚應按有關規定檢查消防設施的現狀和地震時的防火問題。由于天王殿、大雄寶殿是以木構架為承重結構的仿古建筑,其耐火等級應為民用建筑四級,與現行國家標準有關規定相比,現有的防火措施尚存在不少差距:如未有足夠寬的消防車道,沒有安裝火災自動報警器和自動噴水滅火裝置等,這些不足之處會產生一定的安全隱患,建議在修繕時予以改善。
8.4根據《古建筑木結構維護與加固技術規范》進行結構抗震性能分析
根據《古建筑木結構維護與加固技術規范》(GB50165-92,以下簡稱《加固規范》)第4.2.1條,抗震設防烈度為7度的古建筑木結構的抗震鑒定,除應符合現行國家標準《建筑抗震鑒定標準》的要求外,尚應按照《加固規范》4.1節的要求進行抗震構造鑒定。

8.5綜述
綜上所述,根據《建筑抗震鑒定標準》(GB50023-2009),并結合《古建筑木結構維護與加固技術規范》(GB50165-92),天王殿、大雄寶殿部分構造不滿足抗震鑒定要求;天王殿部分檐柱存在腐朽、蛀蝕現象,影響構件抗震承載力;天王殿南立面、西立面以及大雄寶殿南立面東側月洞門磚砌拱券中部存在豎向裂縫,影響抗震性能。
9.檢測結論
1、上海某佛寺天王殿、大雄寶殿為上海市第二批優秀歷史建筑保護單位,保護要求為二類,為木結構仿古江南廟宇建筑,主體結構采用抬梁式木構架,建筑和結構均有特色,具有一定的歷史、科學和藝術價值。
2、經檢測,天王殿、大雄寶殿外立面主要存在屋脊開裂,走獸開裂、缺失,泥塑陳舊、開裂,屋面瓦移位、缺損,屋面受潮生苔、生長植物,封檐板開裂、檐柱嚴重腐朽、油漆脫落,木柱存在干裂,掛落變形等損壞現象;內部存在地坪地磚大面積損壞,金柱干裂,屋面板底檁、椽、梁、斗拱部分干裂,木望板局部損壞,部分卯榫節點輕度脫榫、銷子缺失,天花板局部脫裂,部分墻體門洞處開裂等損壞現象。
3、設施設備等完損檢測結果表明,房屋管線零亂、避雷設施老化,消防系統不健全。
4、經檢測,天王殿檐柱存在白蟻蛀蝕現象;天王殿、大雄寶殿屋面均存在生長苔蘚、植物等損害現象。
5、建筑變形測量結果表明,天王殿南北向為南高北低,相對傾斜率2.41‰;東西向為中間高兩側低,相對傾斜率為2.57‰。天王殿3E處、6E處檐柱傾斜較大,其傾斜率大于上海市工程建設規范《優秀歷史建筑修繕技術規程》(DGJ08-108-2004)規定的二級修繕的建筑總傾斜度限值10‰和層間傾斜度限值11‰。大雄寶殿所有金柱傾斜率基本上均小于上海市工程建設規范《優秀歷史建筑修繕技術規程》(DGJ08-108-2004)規定的二級修繕的建筑總傾斜度限值10‰和層間傾斜度限值11‰。
6、經檢測,天王殿原有青磚砌筑磚強度等級為MU5,天王殿局部新砌所采用的標準紅磚強度等級評定為MU10;大雄寶殿砌筑青磚強度等級為MU5;天王殿原有墻體砌筑砂漿強度推定值介于0.4MPa~1.0MPa,天王殿局部新砌混合砂漿強度推定值為7.6MPa;大雄寶殿砌筑砂漿強度推定值介于0.7MPa ~1.1MPa。房屋主體結構木構件所采用的木材主要為杉木、粗皮松、細皮松,這三種木材新料的強度等級介于TC11A~TC13A之間;舊料構件強度設計值和彈性模量折減系數ψ宜取0.8。
7、經驗算,在正常使用荷載下,天王殿、大雄寶殿木構件的承載力、自承重墻的受壓承載力基本滿足要求。
8、根據《建筑抗震鑒定標準》(GB50023-2009)、《古建筑木結構維護與加固技術規范》(GB50165-92),天王殿、大雄寶殿部分構造不滿足抗震鑒定要求;天王殿部分檐柱存在腐朽、蛀蝕現象,影響構件抗震承載力;天王殿南立面、西立面以及大雄寶殿南立面東側月洞門磚砌拱券中部存在豎向裂縫,影響抗震性能。
9、綜上所述,在正常使用荷載下天王殿、大雄寶殿主體結構安全,但部分結構構件存在干裂、腐朽、蛀蝕等損壞,影響構件承載能力,屋頂及局部建筑和裝飾存在嚴重損壞,宜對天王殿和大雄寶殿進行大修。修繕工程必須滿足優秀歷史建筑保護的相關規定,同時需重視白蟻防治、消防、防雷、抗震、綠化、環境整治等問題。
10.建議
1、天王殿、大雄寶殿具有一定的歷史、科學和藝術價值,尤其是有特色的重點保護部位,應按照修舊如故的保護原則進行修繕。
2、建議本次修繕對屋頂進行整體翻修,在施工過程中進一步檢查木結構構件損壞情況,對癥修繕或加固;對部分傾斜較大的檐柱宜局部打牮撥正,對局部起皮、干裂、糟朽的構件根據損壞程度不同,可以采取填撓清除舊油灰皮、找補填砍至壓麻灰或找補砍除舊地仗等工藝處理,必要時采取加箍等適當加固措施。地仗、油飾、粉刷等均宜采用傳統工藝,需重視基層處理,并注意橫砍豎撓、不傷木骨。
3、對木柱的干縮裂縫,當其深度不超過柱徑(或該方向截面尺寸)的1/3時,可采用嵌補法進行休整。當裂縫寬度不大于3mm時,可在柱的油飾或斷白過程中用膩子勾抹嚴實;當裂縫寬度在3~30mm時,可采用木條嵌補,并用耐水性膠粘劑粘牢,情況嚴重時可在柱的開裂段內加鐵箍2~3道。
4、對木柱的腐朽,可將腐朽部分剔除干凈,經防腐處理后,用干燥木材依原樣和原尺寸修補整齊,并用耐水性膠粘劑粘接;如系周圍剔補,尚需加設鐵箍2~3道。
5、建議請專業單位進行全面白蟻防治和建筑外墻四周及屋面植物根莖徹底清除整治工作。
6、房屋修繕應盡力卸載,應采用輕質、防火材料,嚴格控制新增荷載。另外,還需嚴格控制、合理分布使用荷載,應制定規章制度以控制人流和使用荷載。
7、建議更新房屋配電等設施設備,并重新進行消防、防雷設計、施工。
8、修繕應請有資質的專業單位進行設計和施工,并報主管部門審批。修繕設計、施工均應保留完整的資料,修繕應按照修舊如故的保護原則進行,同時應保證結構安全,并考慮適當提高房屋抗震能力,重視并采取有效措施加強節點、圍護結構及非結構構件與主體結構的連接等。